|
|
|
| 如何解决预埋件、管道根部渗水现象 |
|
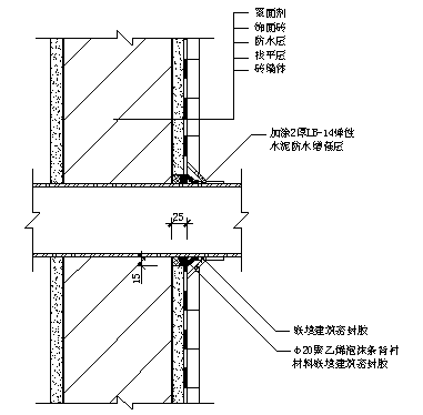
如何解决预埋件、管道根部渗水现象
A、原因分析: 预埋件、管道安装不牢固松动,或者外墙装饰后凿洞打孔安装预埋件,或者受冲撞,抹灰时新老砂浆结合不牢,而酿成空鼓和裂缝。有的后安装预埋件、管道不填洞,导致渗水。 B、处理方法: 1、预埋件(如落水管卡具、空调托架等)及管道安装必须在墙面饰面之前。安装要牢固可靠,不得有松动和位移等缺陷。 2、抹灰时,对预埋件及管道的根部必须精心操作,抹压密实。 3、对预埋件及管道松动或空洞没有填实的维修,应在预埋件周围凿出20mm×30mm的环沟,用水冲洗干净待干燥后嵌填耐候高弹性密封胶封闭严实。 4、穿墙管道根部渗漏维修,应用C20细石混凝土或1:2水泥砂浆固定穿墙管的位置,穿墙管与外墙面交接处应留设15×25mm的凹槽,内设置背衬材料,并嵌填耐候高弹性密封材料。(见图)

|
| |
|
|
|
|
江苏新大高空工程有限公司是中国工业防腐蚀协会的会员单位,是经江苏省建筑工程管理局审定的专业承包企业,具备国家防腐保温资质贰级、高空作业叁级、建筑防水叁级、安全生产许可证、壹级高空防腐施工资质、一级高处悬挂作业资格的专业化公司。公司组建于90年代初,1999年8月由原来的国有企业改制为股分有限公司,经过十多年的艰苦创业,现已发展成为领导班子过硬、技术力量雄厚,具有较强的经济实力和高素质的施工与管理队伍。 企业信誉和科技含量均在国内同行业中处 于领先地位,并率先通过了国际质量体系认证。
公司注册资本1066万,目前下辖十二个工程处,从业人数380人。具备各类专业技术职称的60人,其中高级工程师1人,工程师、经济师、会计师共28人,项目经理11人,拥有大中型机械设备168台(件),年施工产值近8000万元。公司现有6个驻外办事处:华能南京电厂办事处、扬州第二发电厂办事处、 福建雪津啤酒办事处、 广船国际办事处、仪征化纤办事处、唐山办事处。施工网点遍及全国各地二十多个省、市、区,涉及石油、化工、冶金、电力、能源、航天、建材、国防、交通、煤炭、医药、轻纺、食品、港口等十多个行业,承揽了大量的如何解决预埋件、管道根部渗水现象等工程,公司自组建以来,坚持走技术革新之路,依靠丰富的施工经验、先进的施工技术和科学的网络化管理手段,先后承接了系统内各类高空防腐检修、防水堵漏、化学锚固、烟囱新建、环保脱硫等工程近万项,其中有高大难度工程和国家重点工程,都以工程质量好、安全率高,赢得了广大用户的一致好评。
公司将坚持以人为本,全面构建和谐发展的新环境,建立现代企业制度,规范运作,坚持走科技兴企、质量兴企之路,遵循“质量第一、业主至上、信守合同、优质服务”宗旨,“团结协作、严谨求实、优质高效、开拓创新”的企业精神,精心打造精品工程,向新老客户提供最优质满意的服务。
联系方式:
13626225188 联系人:王庄华 E-mail:jsxdgk@163.com 网址:http://www.jsxdff.com |
|
|
| |
|