|
2×600MW机组工程烟囱平台钢梁提升技术
【摘要】 本文主要阐述了华润湖南鲤鱼江发电B厂烟囱工程顶层平台主钢梁采用液压提升吊装施工及经济分析比较总结。
【关键词】 顶层主钢梁 液压提升 平移 经济分析
一、工程概况
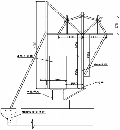
华润电力湖南鲤鱼江发电B厂(2×600MW机组)烟囱工程设35m、99m、163m、226m四层平台,226m层平台两根主大梁为高1.6m,宽0.8m,长14.4m焊接钢梁,单根重量18.5T,中间次梁高为1m,宽0.8m,长6.9m焊接钢梁,梁重4.73T,其余次梁为工字钢,226m层平台合计重51.6T;35m~163m层平台主梁均采用热扎H型钢,35m层平台合计重11.96T,99m层平台合计重9.26T,163m层平台合计重9.35T。
二、方案选择及经济分析
烟囱属于高耸构筑物,安装各层平台特别顶层226m层平台主钢梁单根重量18.5T,考虑其重量大、超高空,根据施工现场实际综合比较拟采取以下两种吊装方案:
方案一:采用两台10T卷扬机抬吊;
方案二:采用两台250T液压千斤顶(烟囱钢内筒提升用)同步提升。
方案比较及经济分析:
2.1 方案一采用两台10T卷扬机抬吊,主钢梁过226m层平台环向牛腿时必须斜过,就位时须在梁端一侧预留1700×900孔洞,设计在此设固定主钢梁铁件,影响主钢梁就位后固定,技术上难度加大,安全性相对较差。
经济分析:采购两台10T卷扬机市场参考价格58000元/台,卷扬机运费约5000元,卷扬机现场布置用吊车台班、卷扬机地铆设置及棚子搭设等合计费用约5000元;Φ32防旋转钢丝绳约1500m,市场参考价格50元/米;还须采用10T滑轮6个,市场参考价格1500元/个;合计费用约21万元。
2.2方案二采用250T液压千斤顶提升,在烟囱筒首设两根放置液压千斤顶副梁,主钢梁直接从中间提升至226m层平台环向牛腿,再平移就位到设计位置。液压提升器集群采用计算机控制,在空中提升构件平稳,进行微动调节简便快捷,吊装过程安全可靠。
经济分析:提升用千斤顶、油泵、钢绞线及上下铆具等都是钢内筒提升所用,考虑设备须5T卷扬机一台,市场参考价格32000元/台,卷扬机现场布置用吊车台班、卷扬机地铆设置及棚子搭设等合计费用约3000元;Φ28钢丝绳约600m,市场参考价格25元/米;还须采用5T滑轮3个,市场参考价格1000元/个,合计费用约5.5万元。
综合比较方案二比方案一安全可靠,且费用节约约15.5万元,因此确定烟囱顶层主钢梁选用方案二采用液压千斤顶提升系统提升。
三、主要施工顺序及施工方法
主要施工顺序:吊装准备—主梁垂直提升---主梁平移就位
1 吊装准备:
包括顶层平台主梁制作及预组装,顶层平台主梁运输,吊装用辅助梁制作就位,液压设备就位

1.1 顶层平台主梁制作及预组装
顶层平台主梁是箱形结构梁,要求精度较高,须采取措施减小焊接应力变形,制作难度较大,为保证在高空安装过程中的准确组装,减少空中组对难度,主梁在吊装前须在加工场预组拼,如图。
1.2 顶层平台主梁运输
大梁运输采用30T平板车,钢梁与车厢间垫两根6米长道木,四周用导链与车厢固定牢固。两根主梁装卸车用50T汽车吊。主梁在烟囱0米卸车后在地面铺设钢板,一头用10T导链,梁下面垫钢管做滚杠,将两根大梁分别拖移动至起吊位置。
1.3 吊装用辅助梁制作就位
用原烟囱外筒施工提升系统平台上部的2T卷扬机将烟囱顶部吊装用两根承重辅助梁及其它材料运输到位,在提升系统平台上加工临时吊装平台及两根承重辅助梁(加工临时平台材料主要用下面三层平台止晃点处暂不使用的400*400H型钢梁,承重梁材料用钢内筒烟道口导流板处的I56a工字钢);2T卷扬机钢丝绳用Φ14(6*37+1)钢丝绳,上料过程中所有导向滑轮不得低于2T,导向滑轮用钢丝绳头为Φ16(6*37+1)钢丝绳。


1.4 液压设备就位
用垂直电梯(2T)及5T卷扬机将吊装顶层平台用两台250T液压千斤顶及配套设备等运到提升系统平台上。设备就位前将辐射梁与烟囱外筒顶部预埋铁件及钢筋焊接将其固定.
2 主梁垂直提升
用两台250T液压千斤顶将烟囱顶层平台主梁(单根重量18.5T)单根吊装,吊到比设计高度高出10cm(距离鼓圈底部10cm),见下图。
2.1 提升控制系统
提升控制系统由计算机主控系统、液压泵站控制系统、提升油缸及油缸传感器(包括行程传感器、锚具传感器)等附件组成。
2.2 上吊点设置
上吊点为承重辅助梁上设置千斤顶及钢铰线,穿钢铰线时考虑其正反力逐根上下进行,钢铰线上部随千斤顶提升逐渐升出去并沿导向架顺着烟囱外筒内壁逐渐至烟囱0米,如下图所示:

(点击可看大图)
等下吊点固定好后,上吊点钢铰线逐根紧固。第二跟主梁吊装时,把第一次吊装用钢铰线的下部变为第二次吊装上部钢铰线,不仅减少穿钢铰线带来的高空作业,且节约工了期。
2.3下吊点设置
主梁提升下吊点如右图所示,吊点位置必须与顶部承重钢梁中心垂直,即钢铰线上下垂直,不倾斜。吊装前,穿好钢铰线,紧固下铆,待上部钢铰线预紧后开始提升,提升离开地面20cm停留10分钟,再次紧固下铆,观察各吊点索具等无异常情况方可继续提升。


3、水平移位
用倒链及滑车(在两根承重量顶部设滑道)将主梁平移到位后降落就位,详见附图。首先液压千斤顶将主梁提升到高出设计高度10cm后,用2个10T倒链将主梁拉住,液压千斤顶不受力后,拆除掉钢绞线。

然后通过承重辅助钢梁顶部两根【10槽钢滑道上部滑车用3T倒链牵引平移主梁,主钢梁两端必须同步缓慢平移。吊装主绳选用Φ32钢丝绳,卡环选用10T卡环。用同样方法将第二根大梁吊装就位。 详见下图:
特别强调:
1.操作人员操作人员必须安全带生根佩带速差器,速差器生根在上部钢梁上,提升平台上脚手板施工过程中拆除后必须及时恢复,并用马钉固定牢固。
2. 液压提升装置严禁非专业人员操作设备。


(点击可看大图)
5、总结
烟囱主钢梁液压同步提升技术的特点
5.1控制模式完备,提升构件的重量、提升高度大。
5.2自动化程度高。整套提升设备采用计算机控制,能够全自动地完成同步升降、负载均衡、姿态校正、参数显示及故障报警等多种功能。
5.3设备体积小,起重/自重比大。可以进入其他起重设备无法进入的狭小空间或高空、地下等施工场合进行起重安装作业
5.4安全可靠性好。系统采用信号冗余传感技术、误操作闭锁、液压系统爆裂自锁和楔形夹具逆向运动自锁等一系列措施,对的安全可靠性作了周密考虑,有效地避免了事故的发生。
总之高耸构(建)筑物工程吊装施工采用液压同步提升技术,是对传统施工技术的重大突破。它以新颖的设计构思、独特的施工方法、高超的自动化程度和良好的安全可靠性适应超大件吊装工程的应用,并将在更广泛的领域获得推广。 |